If you’re looking for a kitchen fixture that provides a great accent in the room – performance-wise and visual capability – then you can stop your search now. The Rangemaster Atlantic Kube 2 bowl stainless steel undermount sink and waste kit (right hand) offers the qualities that you look for in a kitchen sink and then some more.
This geometrically-designed sink from the Atlantic Kube line showcases two bowls with a stunning 10mm-radius corners. The latter makes the sink best suited for a contemporary kitchen equipped with a modernised cabinetry. The stunning sink that comes with a waste kit offers a contemporary square bowl design that is made using a durable stainless steel.
The Atlantic Kube sinks are not compatible with Waste Disposal Units unless a square waste adaptor is in use.
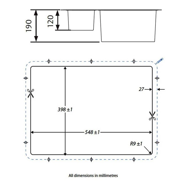
Main Bowl Dimensions:
- Height – 190mm
- Width – 340mm
- Depth – 400mm
Half Bowl Dimensions:
- Height – 140mm
- Width – 180mm
- Depth – 400mm
Minimum Base Unit
- 600mm

















Reviews
There are no reviews yet.